Stadt Peine startet Vermarktung der Bauplätze im neuen Wohngebiet in Schwicheldt
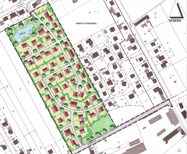
Die Stadt Peine beginnt jetzt mit der Vermarktung der Bauplätze im neuen Baugebiet nördlich des Bründelkampsweges, nachdem die Erschließungsarbeiten weitgehend abgeschlossen sind..
Zuerst nimmt die Stadtverwaltung mit den auf der Interessentenliste vorgemerkten Personen Kontakt auf, die zunächst ein Angebot erhalten. Grundstücke, die danach noch verfügbar sind, gehen schließlich in den freien Verkauf.
Der aktuell angesetzte Quadratmeterpreis liegt bei 155,50 €. Die Stadt Peine verkauft die Flächen zu den reinen Entstehungskosten – ohne Gewinnabsicht.

Infos und Kontaktdaten der Stadt Peine finden Sie HIER.
Für Nachfragen sehen Ihnen aber auch Ortsbürgermeister Christian Bartscht bzw. seine Ortsratskolleginnen Sonja Tidow und Juliana Almeling zur Verfügung.